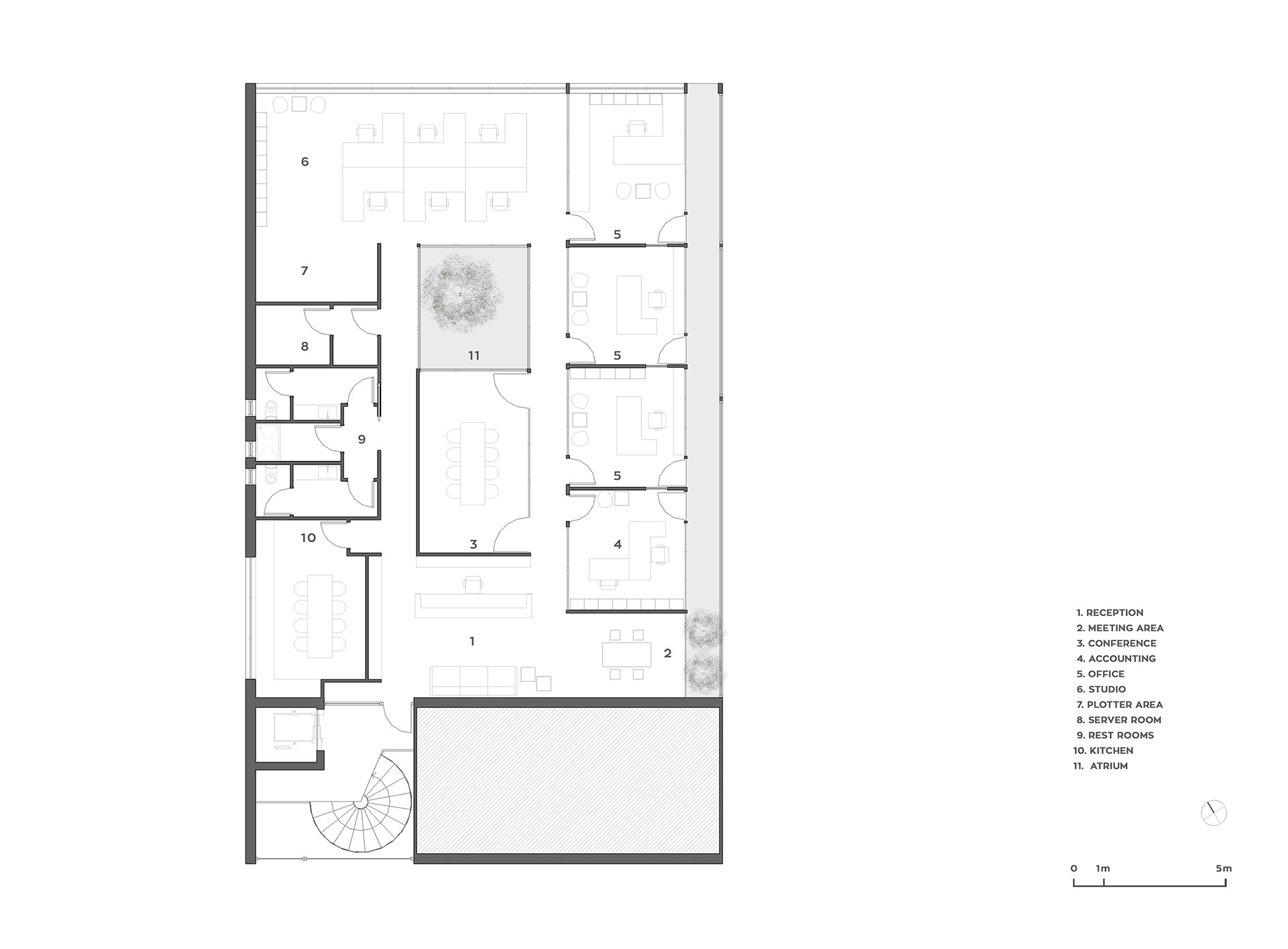
0539Architecture Office SpaceOctober 2, 2018July 15, 2022 Location: 35.05˚ 33.39˚ Nicosia, Cyprus Type: Office space Client: Private Internal area: 315 m² Structure: Steel Design: 2017 Stage: Completed