About Eris

side-about
Based in Denmark, we specialise in art direction, brands, VR experiences and a bunch of other marketing buzzwords.

Categories

  • Illustration
  • Inspiration
  • Packaging
  • Typography
  • Video

Recent Posts

  • Serif TV July 13, 2016
  • Km33 Concept Store June 15, 2016
  • Mita Chocolate June 14, 2016
  • AIAIAI TMA-2 Review June 14, 2016

Tags

3D puzzle Architecture Branding Chocolate Competition Completed Engraving Etching Fabrication Folding Furniture kids Office Packaging Quote Residential Residential Development Serif Tradition Video
Skip to content
Studio 35°33°

Studio 35°33°

architecture and fabrication

  • Architecture
  • Fabrication
  • About
  • Contact
Menu
Press Enter / Return to begin your search.
open search form open sidebar
scroll to discover more back to top

0926

Architecture Residential DevelopmentAugust 1, 2019February 10, 2026

 

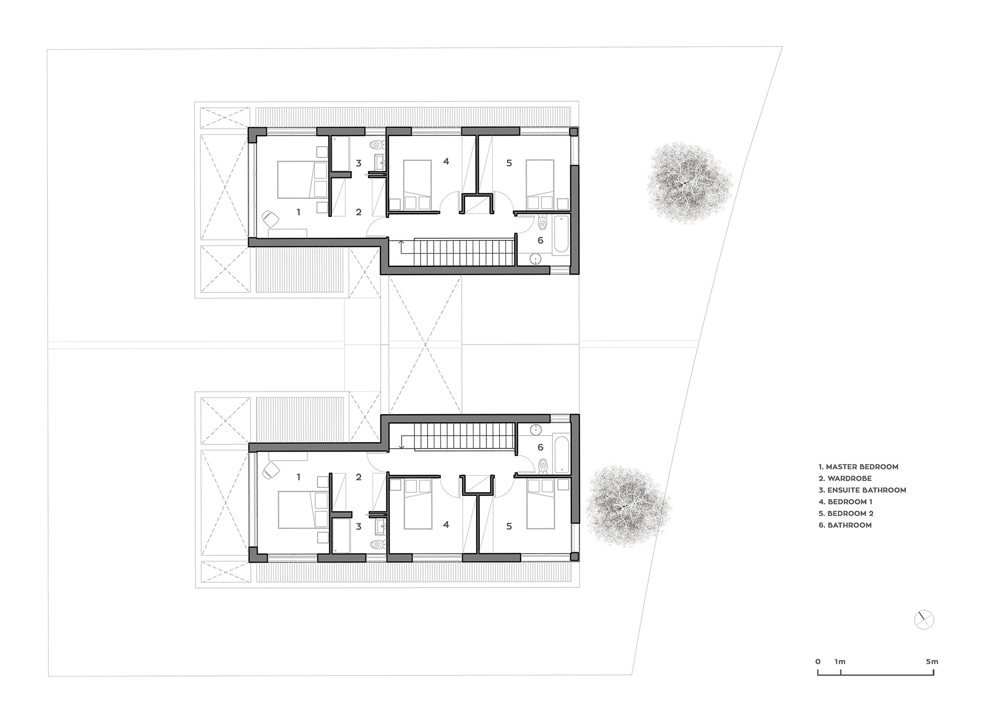
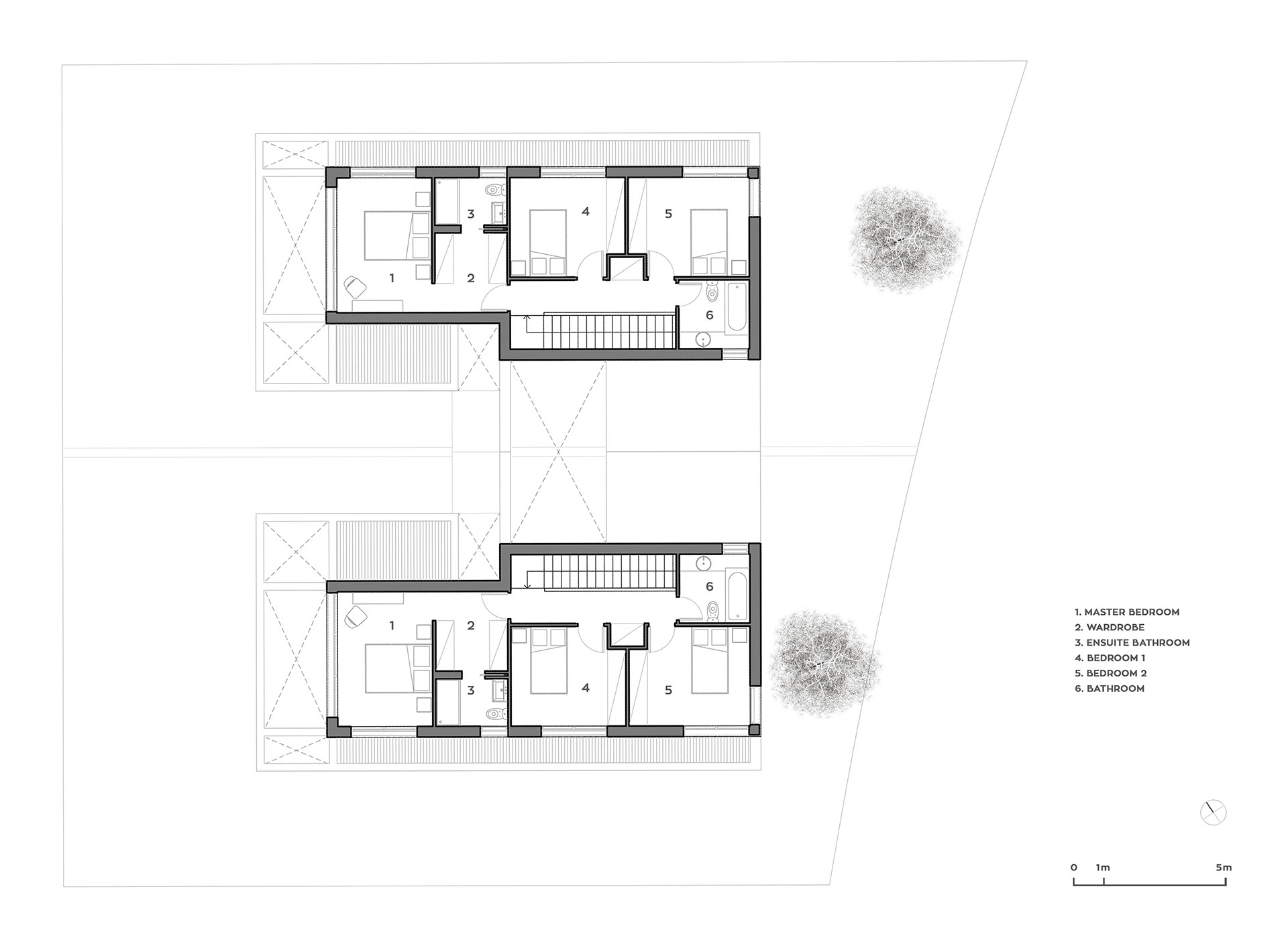
Location: 35.09˚  33.26˚  Nicosia, Cyprus

Type: Residential Development
Client: Private
4 Bedroom House Internal area: 180 m²
3 Bedroom House Internal area: 150 m²
Design: 2017
Stage: Building Permit

Gallery image
Gallery image
Gallery image
Gallery image
Gallery image
Gallery image
Gallery image
Gallery image
Gallery image
Gallery image
Gallery image
Gallery image
Gallery image
Gallery image
Gallery image
Gallery image
Gallery image
Gallery image
Gallery image
Gallery image
Gallery image
Gallery image
Gallery image
Gallery image
Gallery image
Gallery image
Gallery image
Gallery image
Gallery image
Gallery image
Gallery image
Gallery image
Gallery image
Gallery image
[metaslider id=738]   Location: 35.09˚  33.26˚  Nicosia, Cyprus Type: Residential Development Client: Private 4 Bedroom House Internal area: 180 m² 3 Bedroom House Internal area: 150 m² Design: 2017 Stage: Building Permit

Related Projects

7200

In Architecture, Residential

1740

In Architecture, Residential

1034

In Architecture, Residential

Post navigation

1404
1540